网站首页
关于我们
服务专区
BIPV建筑光伏一体化
分布式储能服务
智慧能源管理服务
产品中心
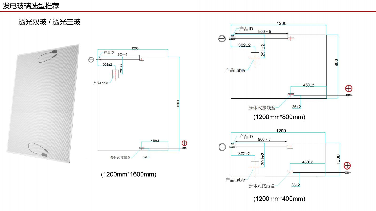
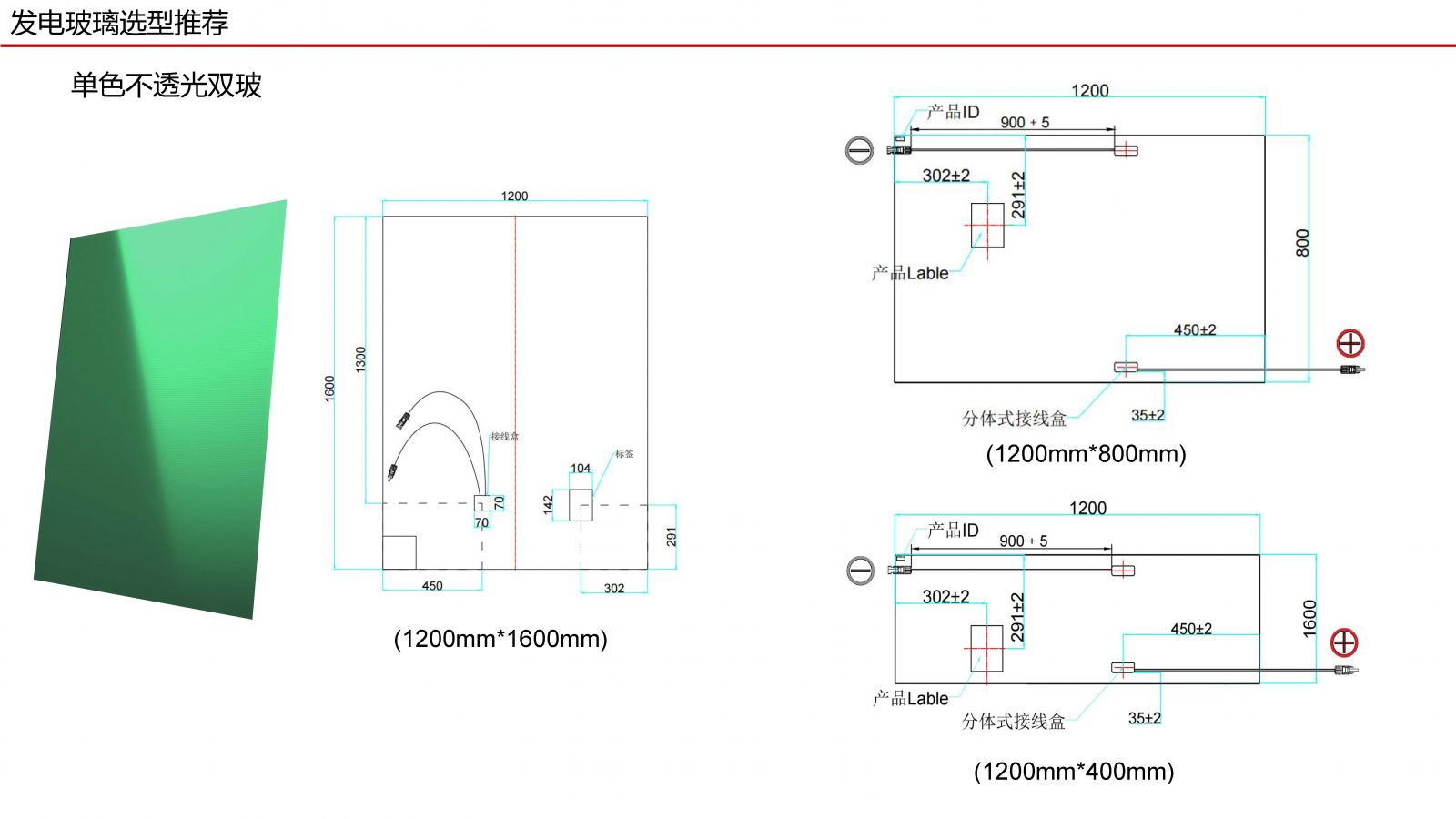
BIPV发电玻璃
碲化镉发电玻璃
铜铟镓硒发电玻璃
智慧能源管理硬件产品
数显仪表、电度表
智能网关
无线测温装置
智能温湿度控制设备
电能质量监测治理
行业应用
新闻资讯
网站首页
关于我们
服务专区
BIPV建筑光伏一体化
分布式储能服务
智慧能源管理服务
产品中心
BIPV发电玻璃
智慧能源管理硬件产品
行业应用
新闻资讯
028-86920622
028-86920622
12009401@qq.com
028-86920622
碲化镉发电玻璃
其他产品
查看产品